Über uns Aktionen Sanierungen Häuser Grundstücke Landwirtschaft öffentl. Bauten Gärten
Startseite Häuser Wohn- und Bürogebäude

Häuser


Haus 1 Haus 2 Haus 3 Haus 4 Haus 5 Haus 6 Haus 7 Haus 8 Stadtvilla Bungalow 1 Bungalow 2 Bungalow 3 Wohn- und Bürogebäude Blockhaus Ökologisches Bauen Wintergärten Carports

Kontakt Impressum Datenschutzerklärung Inhaltsverzeichnis

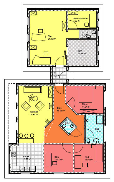
Wohn- und Bürogebäude

Dieses aufwändige Wohn- und Bürogebäude wurde von der Bauplanung Füchter geplant. Das Bauvorhaben wurde in Hamm-Uentrop realisiert.


Erdgeschoss